Kindergarten Holzwürmchen der HTG in Weimar
raum33 architekten Jörg Weber & Dirk Hädicke PartG mbB, Weimar
12 Projektbilder
-
Blick in die Piazza im Erdgeschoss, Bild: Jörg Weber -
Ansicht vom Forum, Bild: Jörg Weber -
Ansicht vom Forum, Bild: Jörg Weber -
Blick in die Piazza im Obergeschoss, Bild: Jörg Weber -
Treppenauge, Bild: Jörg Weber -
Blick zum Hof, Bild: Jörg Weber -
Visualisierung, Bild: Jörg Weber -
KITA_Weimar_Ansichten_k.jpg, Bild: Jörg Weber -
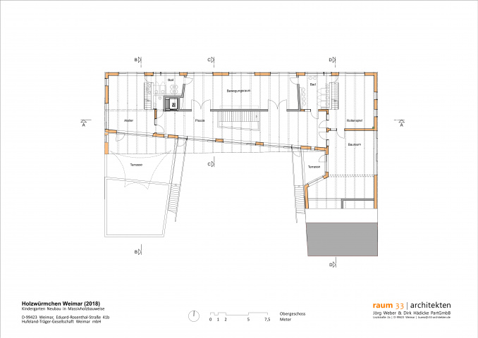
KITA_Weimar_Grundriss_OG_k.jpg, Bild: Jörg Weber -
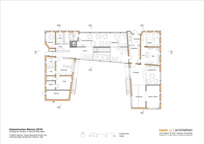
KITA_Weimar_Grundriss_EG_k.jpg, Bild: Jörg Weber -
KITA_Weimar_Ansichten_k.jpg, Bild: Jörg Weber -
KITA_Weimar_Schnitte_k.jpg, Bild: Jörg Weber
Projektbeschreibung
Ein Moderne Plattenbau mit co2 Bindung-Kindergarten für 100 Kinder in Massivholzbauweise.
Nach Durchführung eines Städtebauwettbewerbs im Alten Schlachthofgebiet im Norden von Weimar wurde im vorderen Teil des Gesamtgebietes, Rosenthalstraße / Ecke Schlachthofstraße ein Kindergarten eingeplant.
Die Hufeland Träger Gesellschaft Weimar hat das Grundstück erworben um dort ein Kindergarten in massiver Holzbauweise zu errichten. Massive Holzbauweise bedeutet, dass die tragenden Bauteile des Gebäudes zu 100% aus Holz bestehen. Das gewählte System hat einen hohen Vorfertigungsgrad der Bauelemente Wand und Decke und somit eine vergleichsweise Geringe Bauzeit vor Ort. Der Ausbau des Gebäudes wurde vorwiegend mit ökologischen Baustoffen durchgeführt um einen gesunden Ort für die Kinder zu schaffen.
Projektdaten
Adresse
Eduard-Rosenthal-Straße 41b
99423 Weimar
Planungsbüro
raum33 architekten Jörg Weber & Dirk Hädicke PartG mbB, Weimar
Bauherr
Hufeland-Träger-Gesellschaft Weimar mbH
Fertigstellung
April 2018
Nutzfläche
685 m2
Preise/Auszeichnungen
Thüringer Staatspreis für Architektur und Städtebau 2018
An dieser Stelle wird eine Google-Maps-Karte angezeigt, wenn Sie das Speichern der entsprechenden Cookies erlaubt haben. Dies können Sie über die Privatsphäre-Einstellungen jederzeit tun.
Zugeordnete Schlagworte und Sammlungen
Weitere Projekte des gleichen Büros (4)
-
Bettenhaus im Forstlichen Bildungszentrum in Gehren
Ilmenau
Töpfergasse 27, 98694 Ilmenau OT OT Gehren
raum33 architekten Jörg Weber & Dirk Hädicke PartG mbB, Weimar
Tag der Architektur 2026
Samstag, 27.06.2026 – geöffnet 10:00-14:00
-
Alter Bahnhof Kölleda
Kölleda
Bahnhofstraße 74, 99625 Kölleda
raum33 architekten Jörg Weber & Dirk Hädicke PartG mbB, Weimar
atelier freiraum, WeimarTag der Architektur 2026
Samstag, 27.06.2026 – geöffnet 12:00-15:00, Führungen 13:00 (Treffpunkt: Terrasse Westseite)
-
Kinderkrippe „Pfefferminzgärtchen“
Kölleda
Wilhelm-Pieck-Ring 34, 99625 Kölleda
raum33 architekten Jörg Weber & Dirk Hädicke PartG mbB, Weimar
-
Familienhotel Weimar
Weimar
Seifengasse 8, 99423 Weimar
raum33 architekten Jörg Weber & Dirk Hädicke PartG mbB, Weimar
ABML architekten GmbH, Bad Berka
Letzte Aktualisierung dieser Seite am: 18.12.2024. Alle Angaben auf dieser Seite werden durch das Büro raum33 architekten Jörg Weber & Dirk Hädicke PartG mbB, Weimar auf freiwilliger Basis verwaltet. Das Büro ist für den Inhalt dieser Seite selbst verantwortlich. Die Angaben werden von der Architektenkammer Thüringen nicht geprüft.